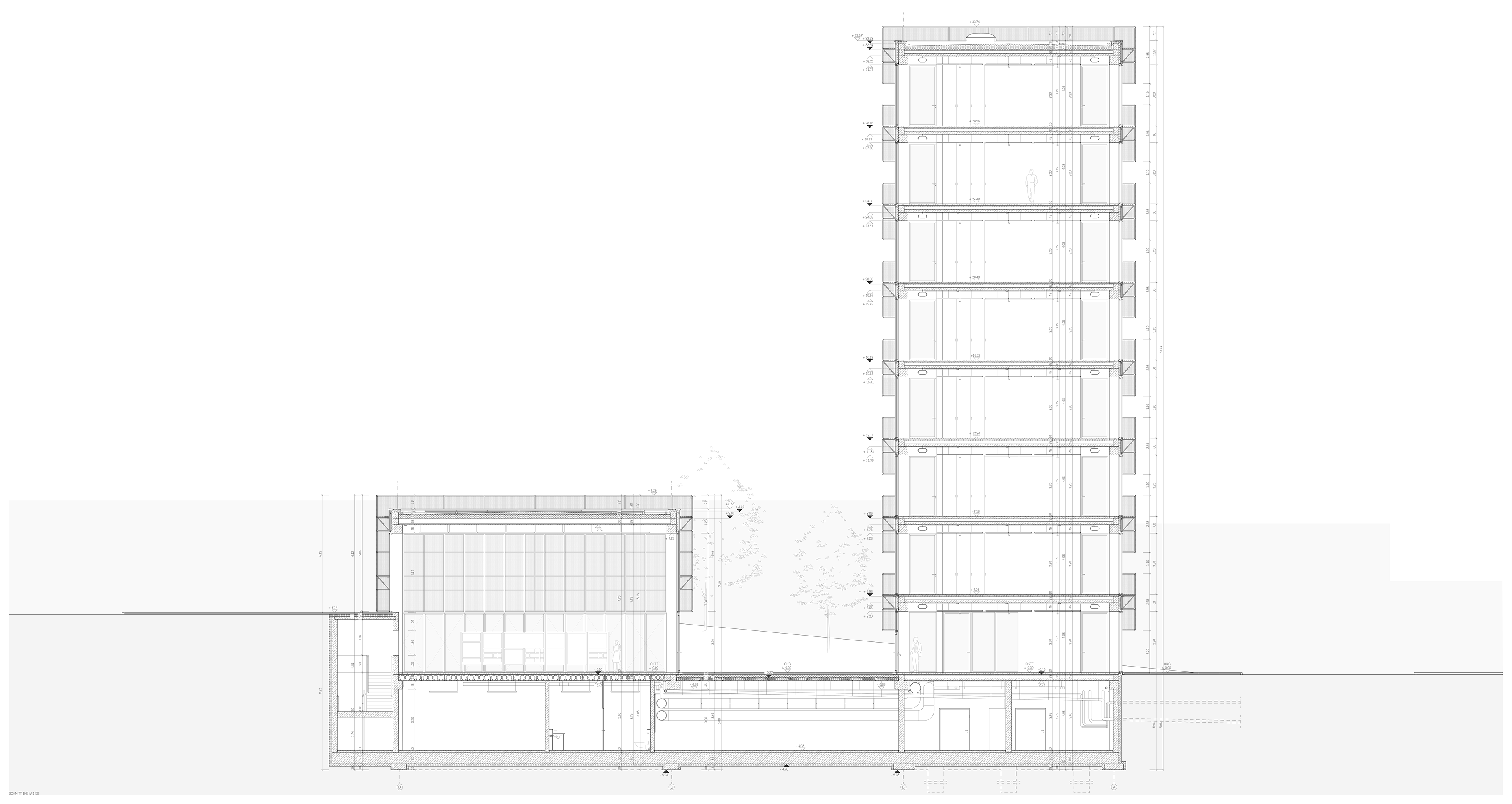
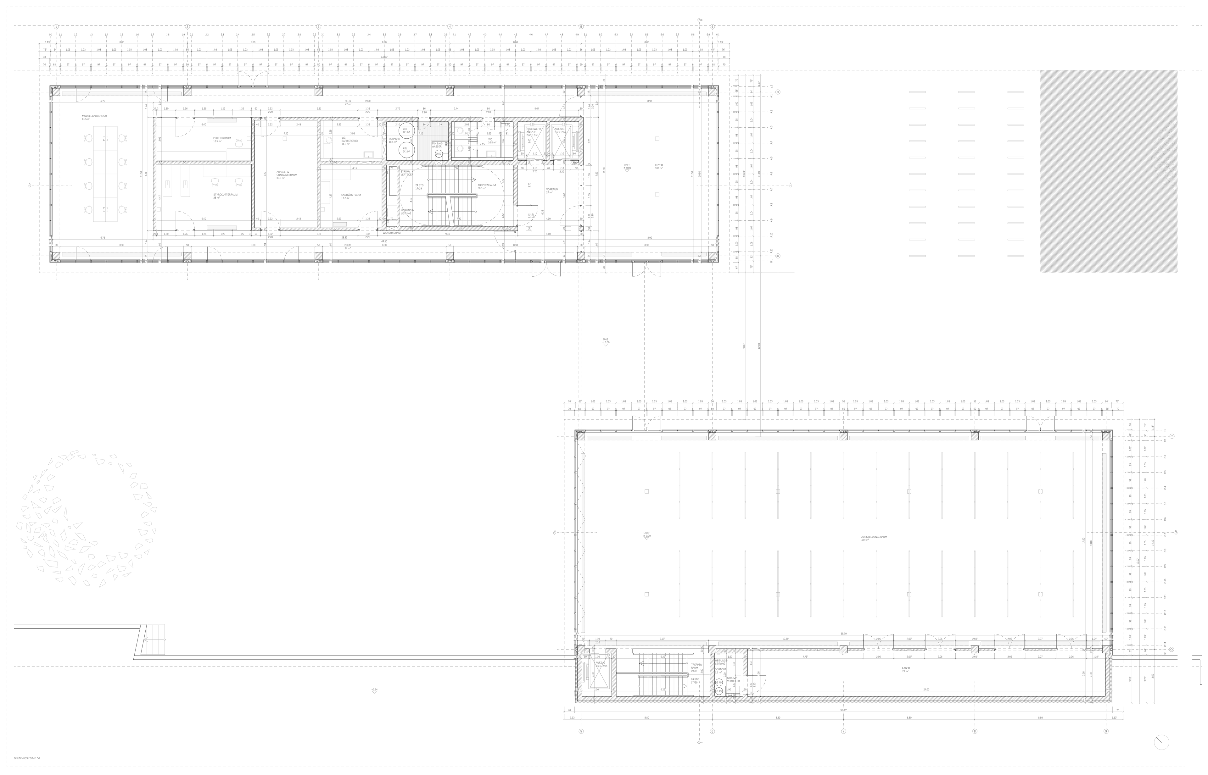
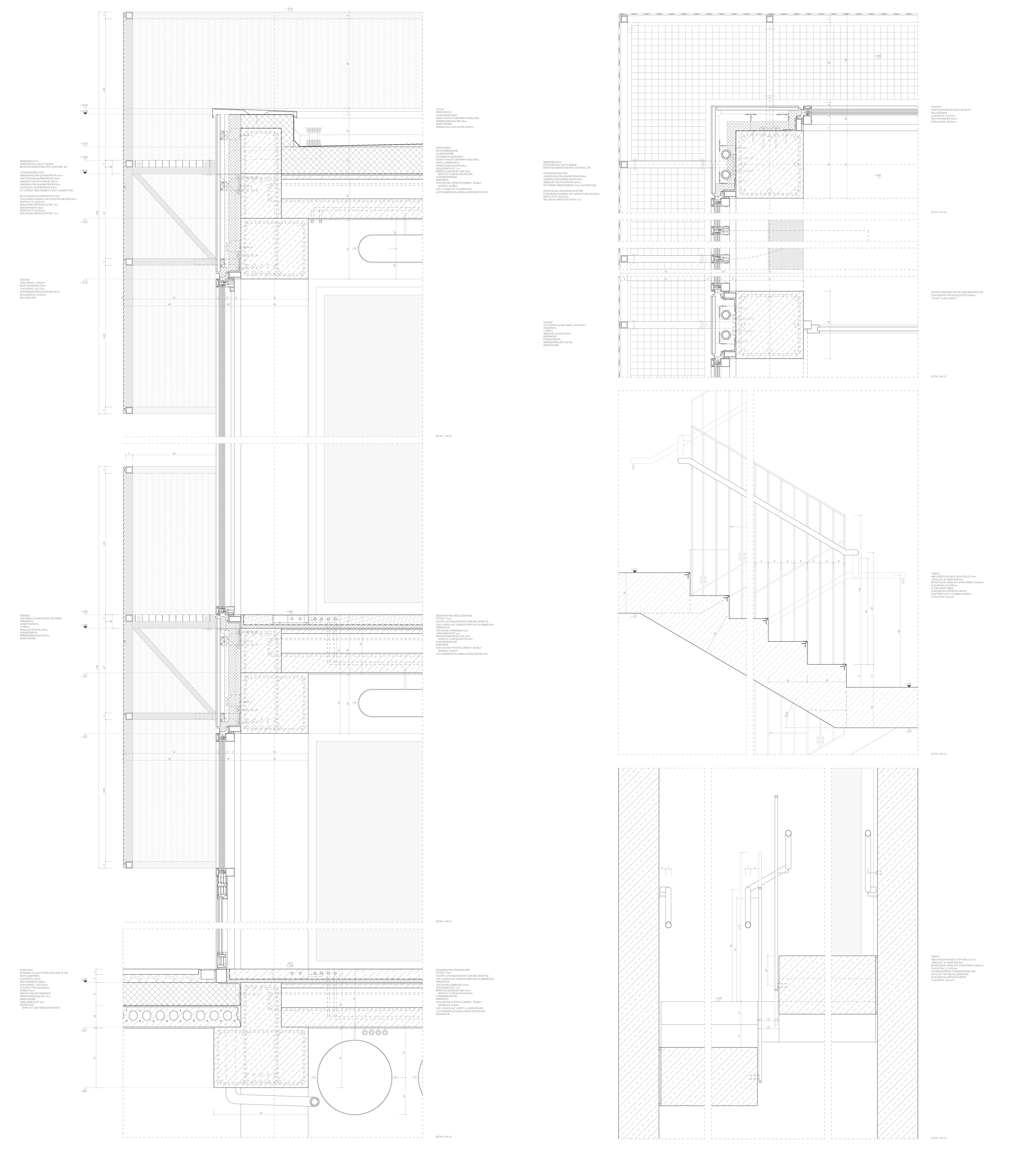
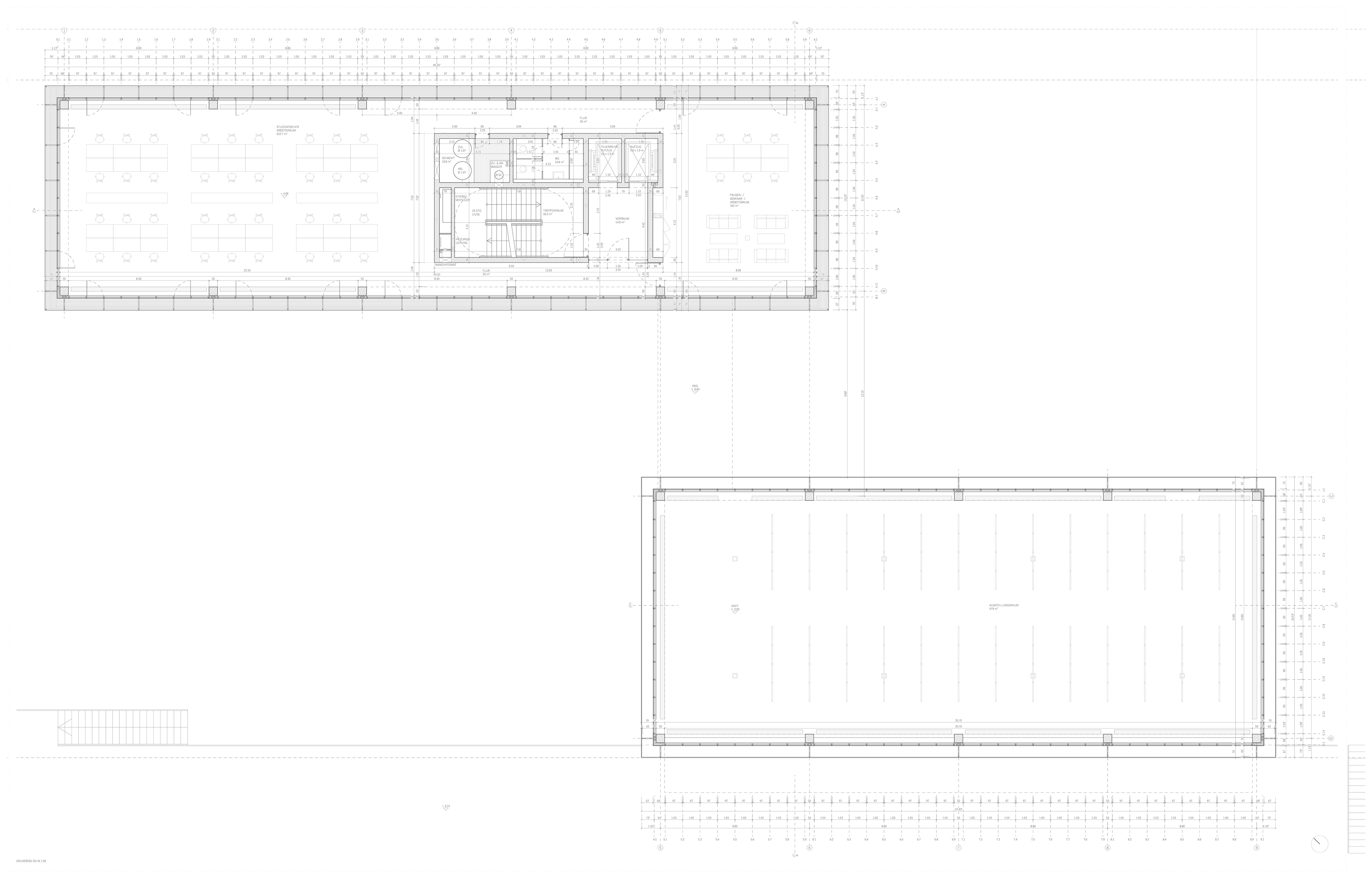
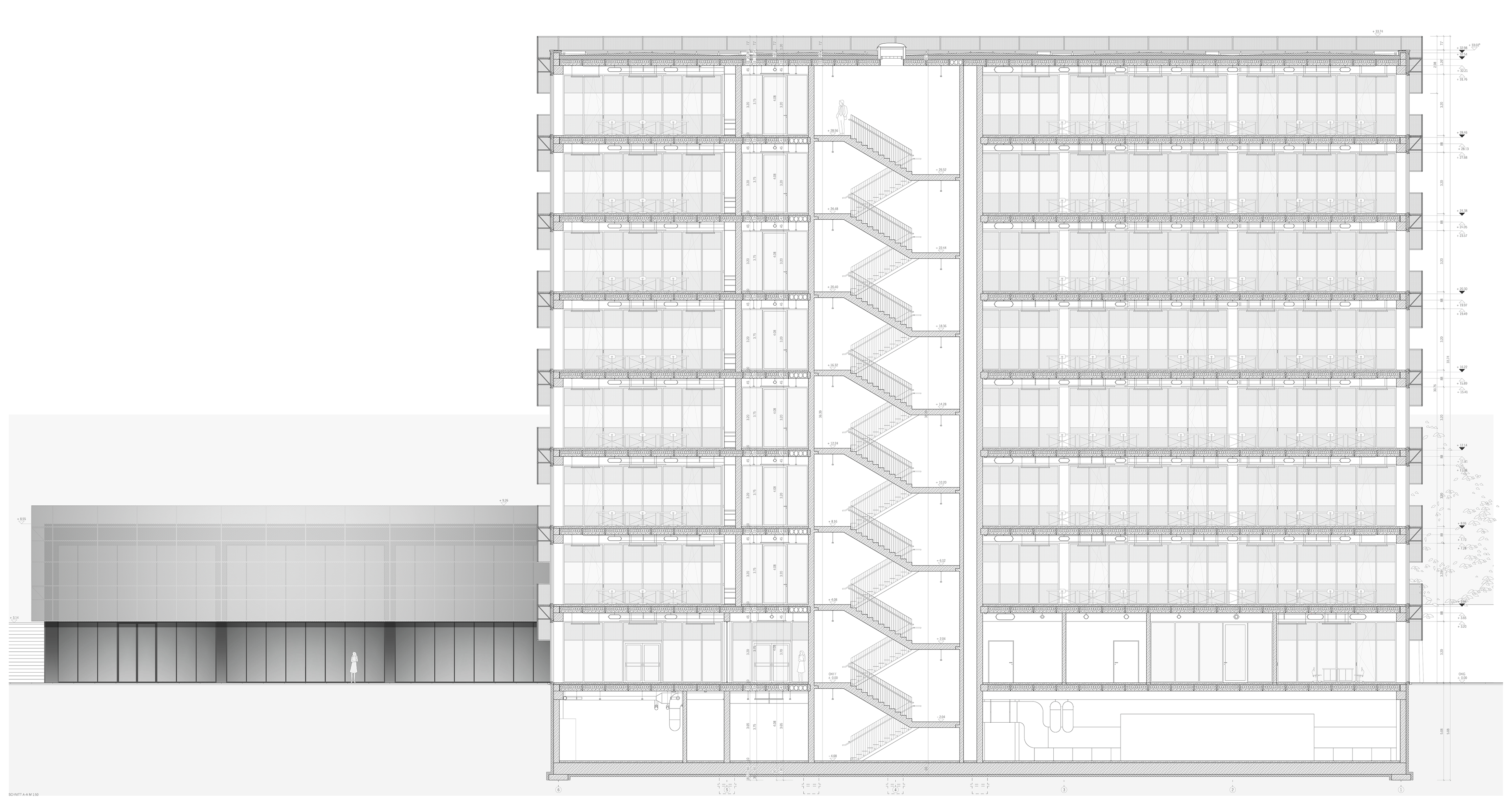
Studentisches Arbeitsgebäude
Integriertes Projekt B2 – in Zusammenarbeit mit Maret Gremmelspacher, Thilo Loose, Cyril Queyrau, Katharina Stommel & Lucy Wang – Prof. Dirk Henning Braun, Prof. Hartwig Schneider & Prof. Martin Trautz – 2018
Integriertes Projekt B2 – in Zusammenarbeit mit Maret Gremmelspacher, Thilo Loose, Cyril Queyrau, Katharina Stommel & Lucy Wang – Prof. Dirk Henning Braun, Prof. Hartwig Schneider & Prof. Martin Trautz – 2018